︎
Projets
Inspirations
A propos
Publications
Contact
L’ALLIANCE
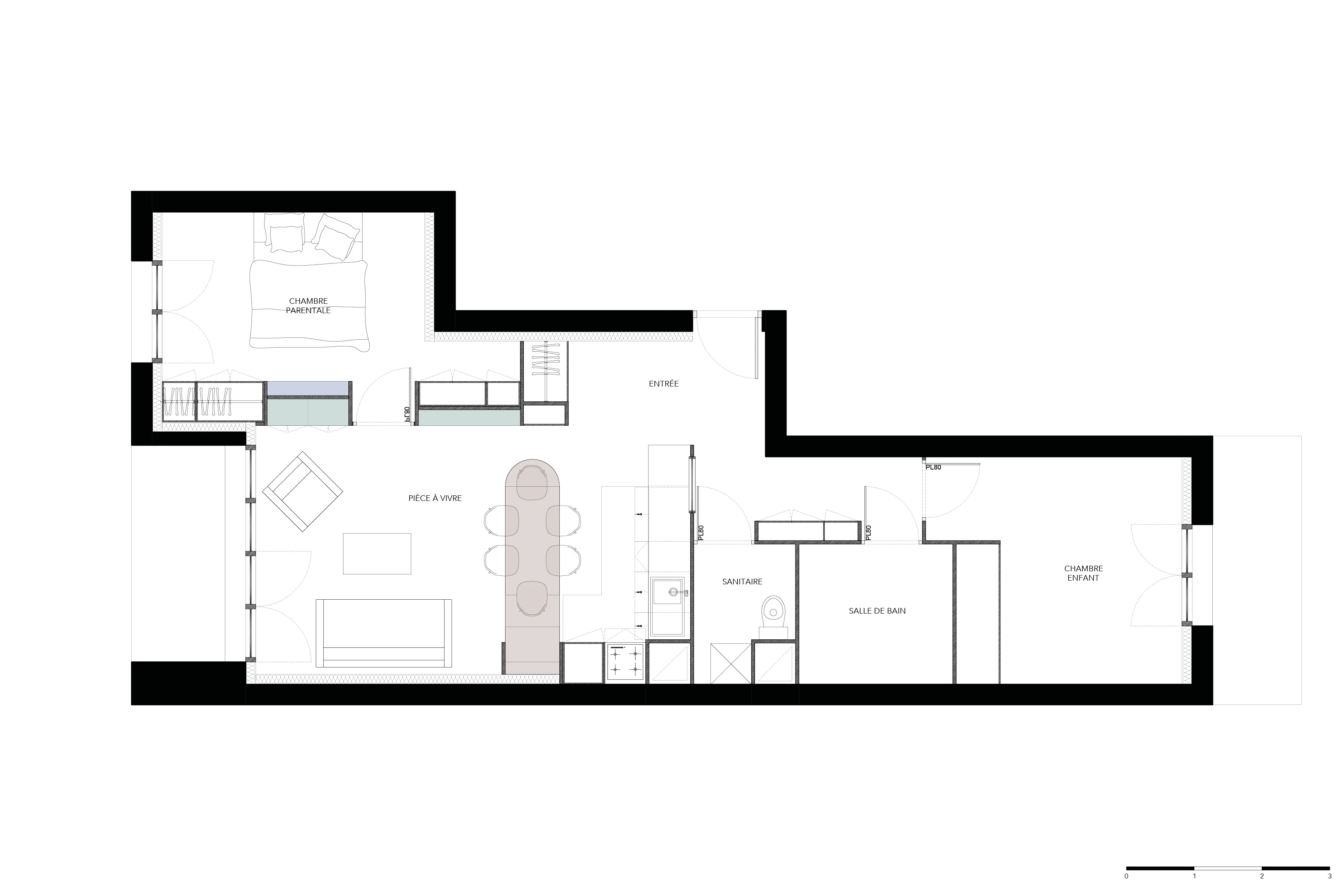
Aménagement d’un appartement de 50 m²
Saint-Ouen, France
Livraison Janvier 2022
Coût des travaux : 40 000 Euros