︎
Projets
Inspirations
A propos
Publications
Contact
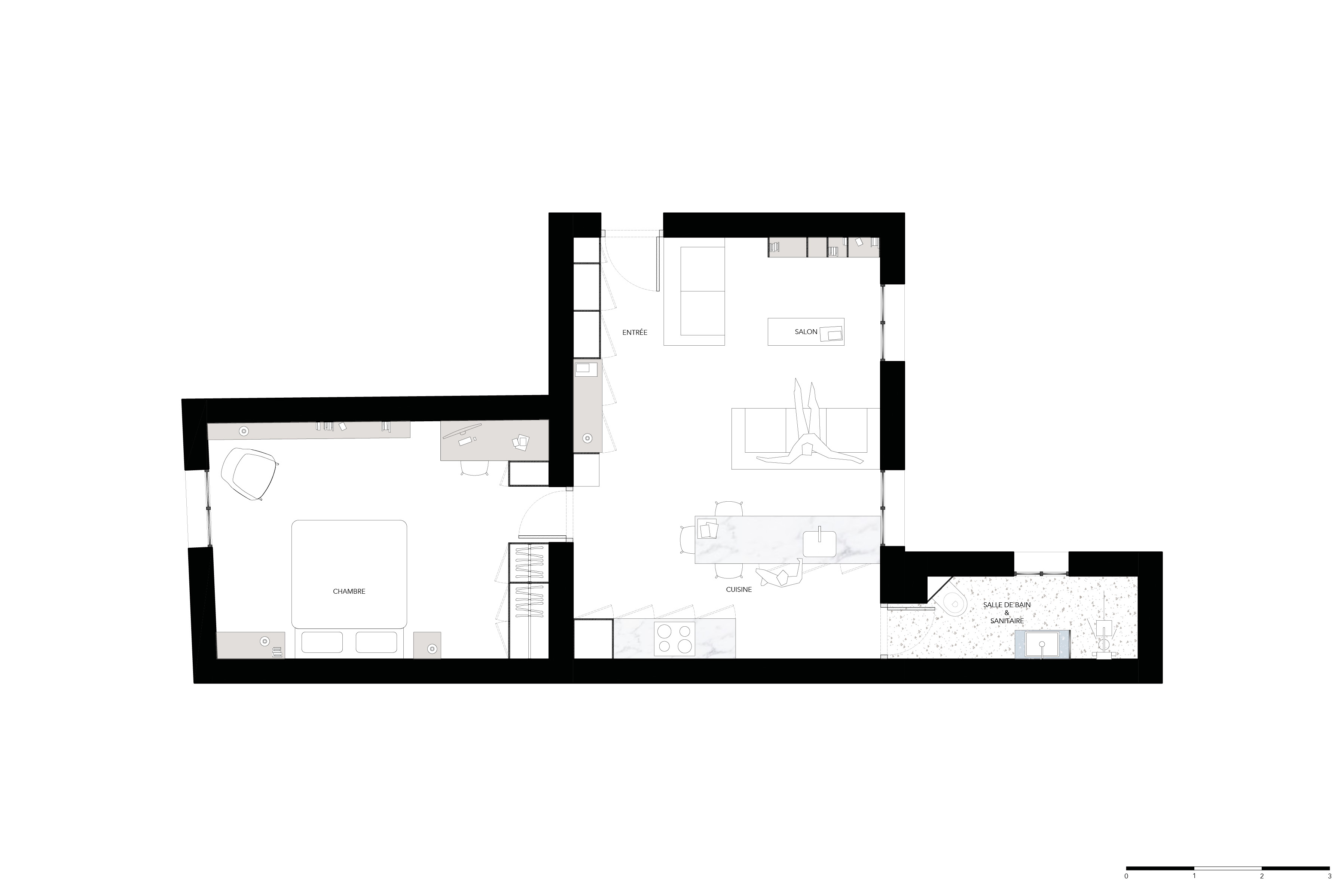
LE CORENTIN
Aménagement d’un appartement de 60 m²
Paris, France
Livraison Octobre 2017
Coût des travaux : 60 000 Euros