︎
Projets
Inspirations
A propos
Publications
Contact
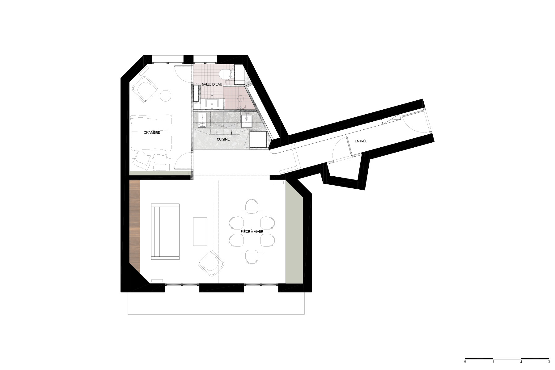
LE COURONNE
Aménagement d’un appartement de 50 m²
Paris, France
Livraison Avril 2024
Coût des travaux : 40 000 Euros