︎
Projets
Inspirations
A propos
Publications
Contact
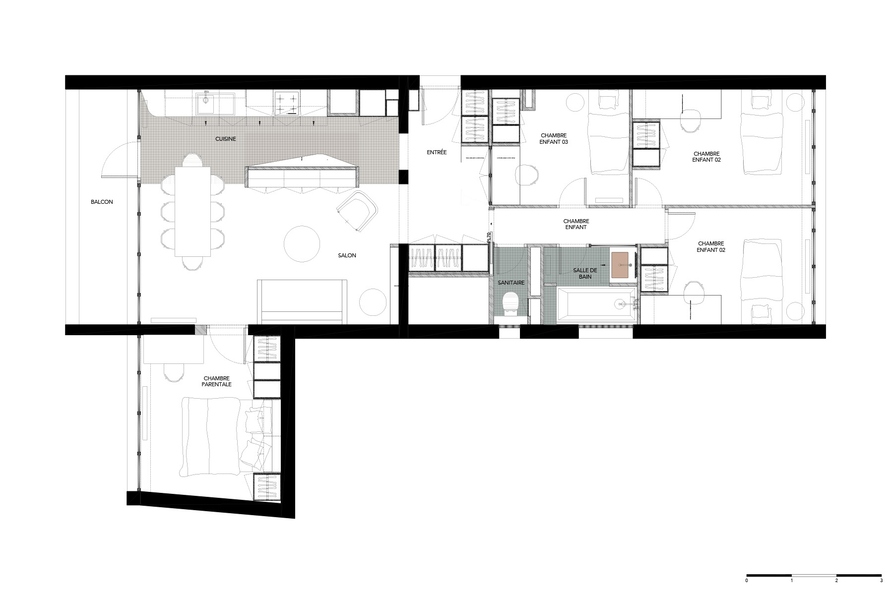
LE LECLAIRE
Aménagement d’un appartement de 85 m²
Paris, France
Livraison Septembre 2023
Coût des travaux : 120 000 Euros