︎
Projets
Inspirations
A propos
Publications
Contact
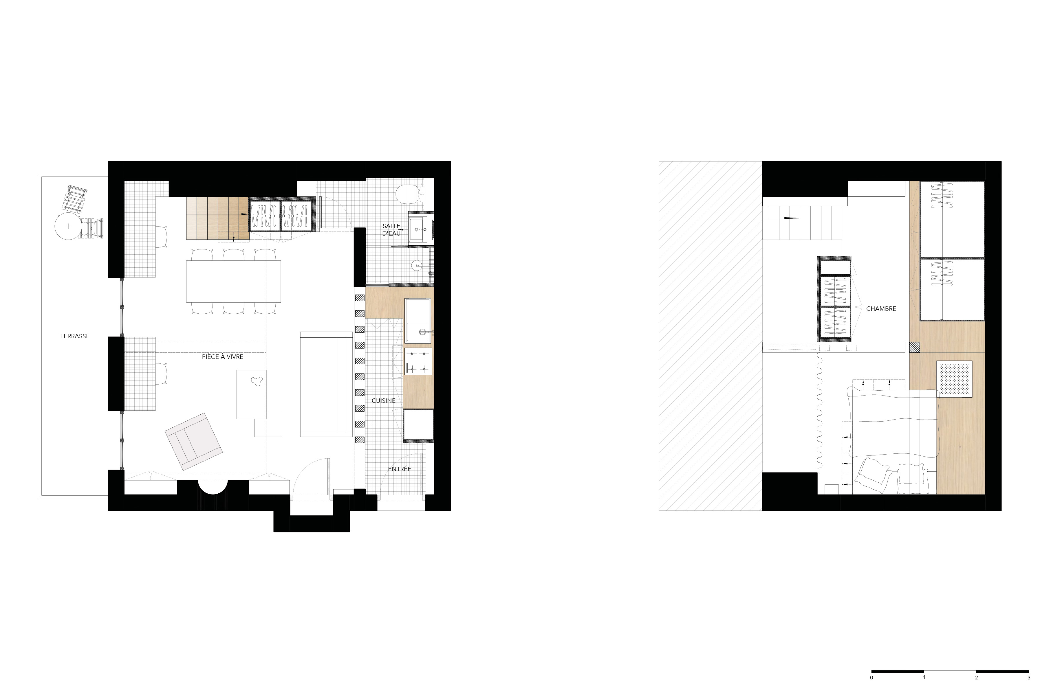
LE SEDAINE
Aménagement d’un appartement de 50 m²
Paris, France
Livraison Juillet 2021
Coût des travaux : 50 000 Euros
Photos : Maxime Huriez